Каталог продукции
Компенсаторы
Заказ продукции

Расширители продувки

Описание
Технические характеристики
Эскизы
Фото
Видео
Опросный лист
Стоимость продукции:
от 70 000 руб.

Расширители продувки (РП, РПП, РНП) используются для разделения пароводяной смеси на пар и воду, которая образуется при дросселировании горячих сбросов котла-утилизатора (продувочная вода).

Довольно часто в теплоэнергетической промышленности применяют также расширители дренажей РД, имеющие схожую с РП конструкцию.

Основное назначение расширителей продувки -  это приём пароводяной смеси от котла, её разделение на пар и воду за счёт расширения и вращательного движения потока в приёмном устройстве расширителя, где происходит процесс отделение воды. Отсепарированный пар выходит через верхний штуцер в атмосферу.

РП – расширитель продувки;
РПП – расширитель периодической продувки;
РНП – расширитель непрерывной продувки;
РД – расширитель дренажей;

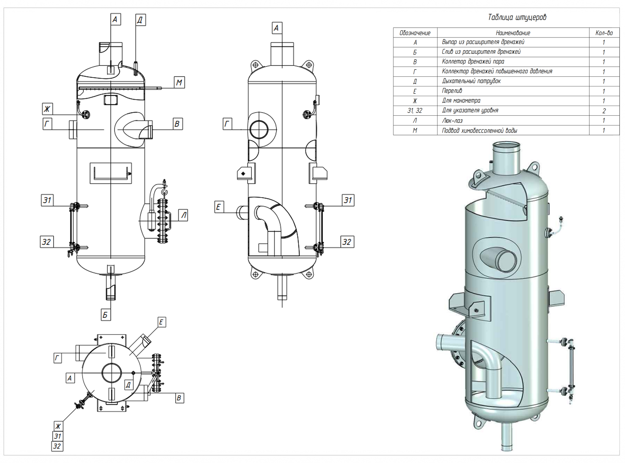
Расширитель продувки представляют собой вертикальный цилиндрический сосуд с эллиптическими днищами, смотровым люком, тангенциальным подводом продувочной воды (конденсата) и необходимыми для работы штуцерами. Также при необходимости расширители продувки оснащаются внутренними отбойными защитными обечайками, предназначенными для защиты корпуса от воздействия абразивных частиц входного потока, а также внутренними устройствами, улучшающими процесс отделения жидкости из пароводяной смеси.

iytcduoocfeic7sge45wpnyuopcv59w1.jpgМаркировка расширителей непрерывной и периодической продувки:

РП-7,5-2,0, где:

РП – расширитель продувки

7,5 – объем, м3

2,0 – диаметр корпуса, мм

Установка расширителей продувки должна производиться таким образом, чтобы обеспечивать устойчивость работы и возможность технического обслуживания.

Стандартные исполнения расширителей продувки: РП-0,12-0,35, РП-0,18-0,45, РП-0,4-0,44, РП-0,5-0,7, РП-0,6-0,6, РП-1,4-0,7, РП-1,77-0,8, РП-2,6-1,0, РП-4,0-1,3, РП-4,84-1,2, РП-5,0-1,4, РП-7,5-2,0 (Р-2000), РП-7,5-2,0 (Р-2000), РП-7,68-1,6, РП-8,1-1,8, РП-10,5-1,8, РП-22-2,6

ООО «Химмаш» может изготовить и нестандартные модификации расширителей непрерывной и периодической продувки и расширителей дренажей.

Технические характеристики расширителей продувки

Тип Объем,
м3
Давление
расчетное,
МПа
Диаметр
корпуса,
мм
Темпера-
тура
рабочая, С
Масса,
кг
РП-0,12-0,35 0,12 0,5 377 150 400
РП-0,18-0,45 0,18 1,14 450 180 150
РП-0,4-0,44 0,4 0,7 450 165 555
РП-0,5-0,7 0,5 0,6 720 120 620
РП-0,6-0,6 0,6 0,6 630 135 385
РП-1,4-0,7 1,4 0,6 720 165 1140
РП-1,77-0,8 1,77 0,5 800 105 1200
РП-2,6-1,0 2,6 0,35 1000 105 1650
РП-4,0-1,3 4 1,2 1300 125 3400
РП-4,84-1,2 4,84 2,1 1200 200 2050
РП-5,0-1,4 5 0,8 1400 130 1650
РП-7,5-2,0 (Р-2000) 7,5 0,2 2000 130 2700
РП-7,68-1,6 7,68 0,5 1600 105 3600
РП-8,1-1,8 8,1 0,8 1800 130 2900
РП-10,5-1,8 10,5 0,23 1800 125 5115
РП-22-2,6 22 0,3 2600 100 11300

Эскиз расширитель продувки

эскиз.jpg

Эскиз расширитель дренажейэскиз2.jpg

Для заказа нашей продукции вы можете скачать опросный лист на расширители продувки и направить его по электронной почте: marketing@penzahim.ru. Также можете связаться с нашими менеджерами по телефонам: +7(8412) 99-19-89, 99-19-35, 99-19-73, 99-19-75, 99-19-24.