Каталог продукции
Компенсаторы
Заказ продукции

АГЗУ

Описание
Технические характеристики
Эскизы
Фото
Видео
Опросный лист
Стоимость продукции:
от 460 000 руб.

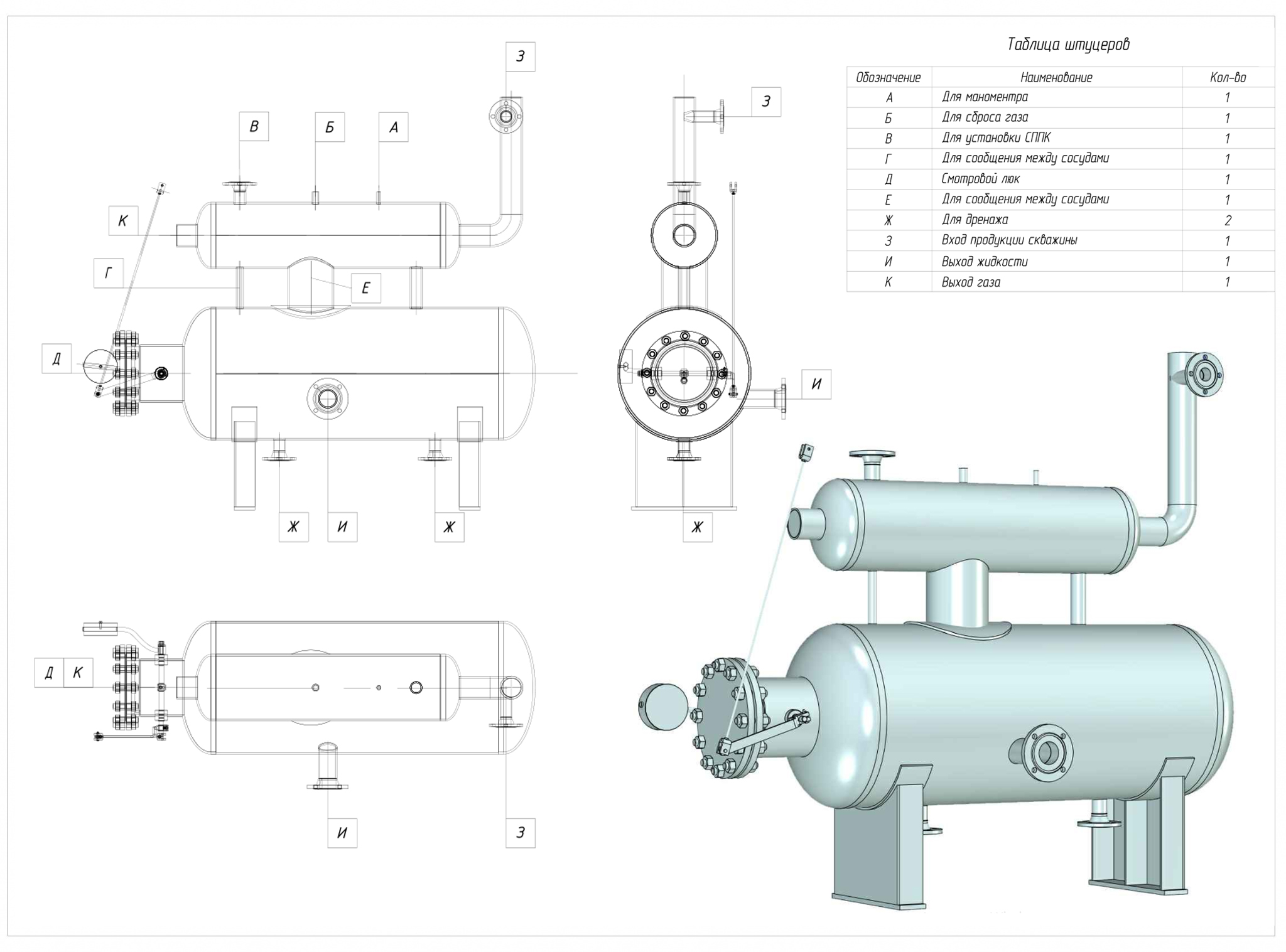
Сепарационная емкость АГЗУ предназначена для отделения попутного нефтяного газа от жидкости и дальнейшего их измерения в составе нефтегазовой смеси продукции нефтяных и газоконденсатных скважин.

Существуют две основные модификации сепарационных емкостей:

  • объемом 0,79 м3 с производительностью по жидкости до 400 м3 в сутки;
  • объемом 3,4 м3 с производительностью по жидкости до 1500 м3 в сутки;
Конструктивно сепарационная емкость состоит из:
  • гидроциклонной головки, выполняющей (с помощью центробежных сил) основную функцию сепарации;
  • верхней сепарационной части;
  • Емкость сепарационная АГЗУ.jpg
  • нижней накопительной части;
  • внутренних специальных устройств (перегородки, направляющие полки)
  • поплавкового механизма;
  • смотрового люка;
  • дренажной системы;

Емкости могут быть изготовлены в правом или в левом исполнении, с внутренним или усиленным наружным покрытием.


Технические характеристики АГЗУ

Обозначение Объем, м3 Рабочее давление, МПа Производи-тельность по жидкости, м3/сут Производитель-ность по газу, м3/сут Диаметр верхней/нижней емкости, мм Масса, кг
Емкость сепарационная АГЗУ 0,79 4,0 400 4000 377 / 720 1100
3,4 1500 15000 530 / 1000 3000

Эскиз АГЗУ

эскиз.jpg

Для заказа нашей продукции вы можете скачать опросный лист на агзу и направить его по электронной почте: marketing@penzahim.ru. Также можете связаться с нашими менеджерами по телефонам: +7(8412) 99-19-89, 99-19-35, 99-19-73, 99-19-75, 99-19-24.